物件詳細情報
| 交通 |
JR東海道本線(米原~神戸) / 住吉駅 徒歩8分 |
| その他交通 |
阪急神戸線 / 御影駅 徒歩10分
|
| 所在地 |
兵庫県神戸市東灘区住吉本町3丁目 |
| 物件種目 |
新築貸マンション |
| 賃料 |
19.3万円 |
管理費等 |
15,000円 |
| 敷金 / 保証金 |
19.30万円/なし |
礼金 |
19.30万円 |
| 敷引 |
- |
保証金償却 |
- |
| その他一時金 |
駐輪場ステッカー:440円、 清掃費:49,500円、 エアコン清掃費:33,000円 |
保険等 |
加入要 / 2年間 16,550円 |
| 維持費等 |
- |
| 建物名・部屋番号 |
ミレーネ神戸住吉本町 106 |
| 設備 |
宅配BOX システムキッチン エアコン2台以上 バス・トイレ別室 室内洗濯機置場 シューズIC シューズボックス オートロック モニタ付インターホン ディンプルキー ダブルロックドア 防犯カメラ 食器洗浄乾燥機 グリル エレベーター 浴室乾燥機 追焚機能 洗面所独立 インターネット使用料無料 CATV 温水洗浄便座 |
| 備考 |
賃貸保証等:加入要 ジェイリース 初回保証料:賃料等の50%、月次保証料:賃料等の1%(更新料無)、口座振替手数料借主負担 新築◆2026年1 月31日入居開始◆ネットWi-Fi無料 ■保証会社利用必須※一部法人契約は敷金1ヶ月積増■ペット(小型犬もしくは猫1匹まで)飼育可※敷金1ヶ月積増円■駐車場:機械式19,800円■バイク置き場:大型5,500円、小型2,200円■駐輪場:下段440円、上段220円、駐輪ステッカー代440円■退去時通常清掃費49,500円、エアコン清掃費8,250円/台■B1住戸専用庭あり
|
| エネルギー消費性能 |
- |
断熱性能 |
- |
| 目安光熱費 |
- |
|
|
| 間取り |
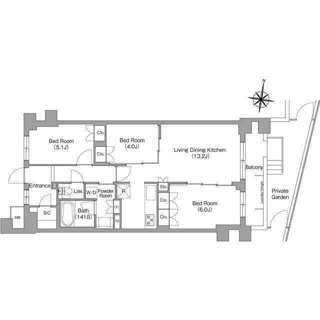
3LDK(LDK13.2 洋6 洋5.1 洋4) |
主要採光面 |
東 |
| 専有面積 |
67.39㎡ |
階建/階 |
地上3階地下1階建/1階 |
| 築年月 |
2026年1月 |
建物構造 |
RC |
| 総戸数 |
29戸 |
|
|
| 駐車場 |
なし |
バイク置き場 |
- |
| 駐輪場 |
- |
ペット |
小型犬可 猫可 その他:ペット(小型犬または猫1匹まで |
| 契約期間 |
2年 |
現況 |
完成済 |
| 条件等 |
- |
入居可能時期 |
即時 |
| 更新料 |
- |
|
|
| 物件番号 |
1171578121 |
|
|
| 情報公開日 |
2025/11/20 |
次回更新予定日 |
2026/02/25 |
※「-」と表示されている項目については、情報提供会社にご確認ください。
情報提供会社
住まいフェア 神戸電力不動産(株)
- 交通:
- 阪急電鉄神戸線/神戸三宮 徒歩10分
- 住所:
- 兵庫県神戸市中央区江戸町85-1
- TEL:
- 078-333-0713
- FAX:
- 078-333-0714
- 所属団体など:
| (一社)兵庫県宅地建物取引業協会会員 |
| (公社)近畿地区不動産公正取引協議会加盟 |
- 取引態様:
- 仲介
- 免許番号:
- 兵庫県知事免許(2)第204404号
メールでお問い合わせ